Werkstätte/Produktionsflächen in Weiler zu vermieten
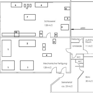
Die Werkstätte umfasst ca. 256 m2 Produktionsfläche zzgl. ca. 90 m2 für Empfang, Büro, Sozialräume und Toilettenanlagen.
Im Außenbereich befinden sich derzeit zwei Container für Lagerzwecke, die anderen Freiflächen werden als Parkplätze, Ausstellungsfläche etc. benützt.
Aktuell wird die Werkstätte als Schlosserei genutzt. Der derzeitige Mieter hat ein Betriebsgelände in der Region erworben und hat zur Ausweitung der Kapazität einen neuen Betriebsstandort errichtet.
Über den Autobahnknoten in Klaus ist das Objekt gut erreichbar. Die Distanz beträgt ca. 2,5 km.
Die Mietdauer kann variabel vereinbart werden.










