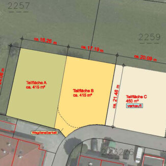
Zwei Baugründe mit ca. 415 m²
In ruhiger und sonniger Lage befinden sich die beiden Grundparzellen GST 2238 und GST 2239 mit zusammen 1.278 m².
Eine Teilfläche mit 450 m² wurde verkauft und nun stehen noch zwei Grundparzellen mit jeweils ca. 415 m² zur Verfügung.
Auf Wunsch kann das Flächenausmaß noch geringfügig verändert werden. Grundsätzlich ist für eine Grundteilung die Bewilligung der Gemeinde notwendig.
Die Erschließung erfolgt über die Gemeindestraße „Im Plattner“. Wasser-, Kanal- und Stromanschlussmöglichkeiten befinden sich am Grundstück oder in der Nähe.
Aktuell arbeitet die Gemeinde Klaus einen neuen Bebauungsplan aus. Die voraussichtliche Baunutzzahl bei dieser Liegenschaft beträgt 60, die Höchstgeschosszahl 3.










